Развернуть карту

Продажа производственного помещения, Поярково, Солнечногорский район, ..., 90000000 руб.

  • Общая площадь, м²1749.7
Адрес: Подмосковье, Солнечногорский район, Поярково, Лесная Цесарка ул.

Арт.
Продается производственно-складская база, состоящая из здания склада и трехэтажного производственного здания, расположенных на земельном участке 4000 кв.м.
Земельный участок ровный, огорожен, с твердым покрытием, находится на первой линии Клушинского шоссе.
ВРИ: Для размещения авторемонтной базы и производства строительных материалов.
Категория земель: Земли населенных пунктов.
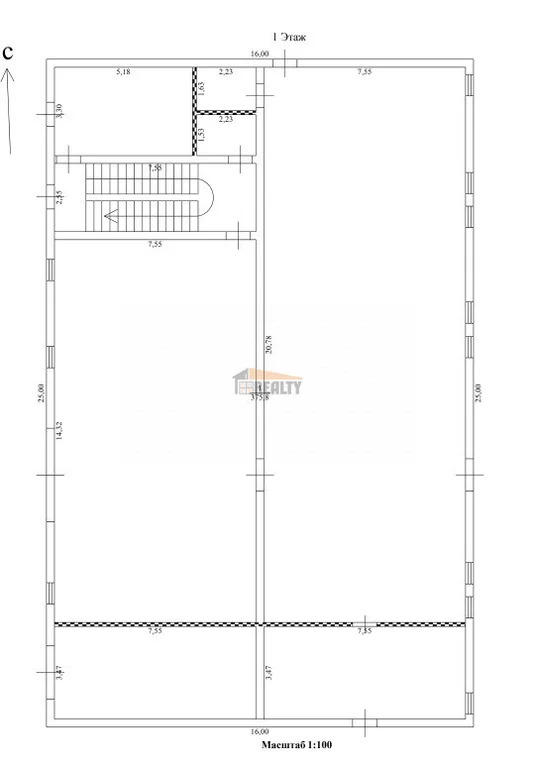
Общая площадь застройки - 1749,7 кв.м. из них:Здание склада площадью - 720 кв.м. Склад - здание ангарного типа. Высота потолка по свесам кровли - 6,9м в коньке - 9,65 м. Стены - металлические профильные листы со стеклопакетами. Кровля - металлический профиль. Имеется встроенная антресоль. Пол - бетон, фундамент - монолитный ленточный с армированной плитой 25мм. Большие въездные ворота под заезд фуры. Здание в данный момент не утеплено, но при желании его возможно утеплить и отапливать.Производственное трехэтажное здание - общей площадью 1029 кв.м. Состоит из двух этажей и мансарды. Высота потолков на этажах - 3,2м, в мансарде- 3,45м (в коньке). Здание построено из малых бетонных блоков и обшито окрашенным металлическим профилем.
Территория огорожена, имеются распашные ворота.
Вода- скважина, канализация - автономный септик.
Выделенная электрическая мощность - 60 кВт с возможностью увеличения до 150 кВт (условия обсуждаются дополнительно). Интернет.
Имеется возможность газификации объекта, газовая магистраль по границе.
Удачное месторасположение, первая линия Клушинского шоссе, до развязки с Ленинградским шоссе - 6 км. Расстояние до МКАД- 20 км.
Оперативный показ и быстрый выход на сделку!
Звоните все подробности по телефону!



90000000 руб. | 1363469 $ | 1194873 €

Захарова Зинаида Владимировна

+7 (495) 532-41-14

Изменено: 01 Dec 2025, 22:40:01