
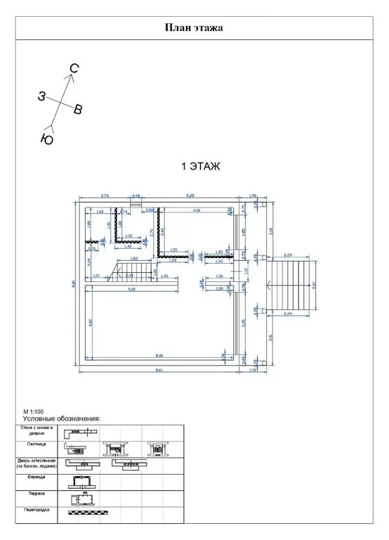
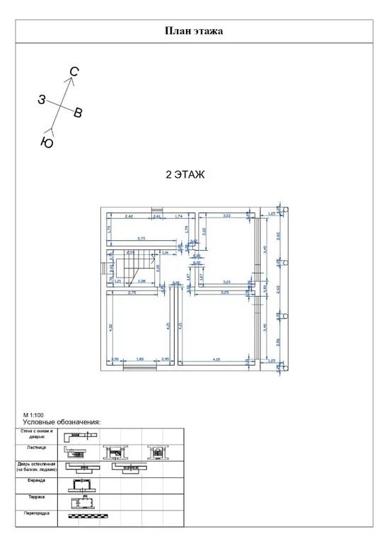
Продается новый дом для круглогодичного проживания в п. Лунево, Солнечногорского района. 35 км. от МКАД по Ленинградскому шоссе. Общая площадь 164 кв.м, материал постройки пеноблоки, фундамент ленточный, утеплитель Пеноплекс. Функциональная планировка дома: на первом этаже кухня, гостиная, совместный санузел, котельная, на втором этаже три изолированные комнаты, совместный санузел.
На первом этаже везде установлен теплый пол.
Сделан современный ремонт в спокойный тонах, который подойдет под мебель разных стилей.
Коммуникации: электричество 15квт, отопление электрическое, колодец, канализация септик.
По периметру всего дома подвал, который можно переоборудовать по своему усмотрению.
Участок 8 соток, огорожен, назначение ИЖС.
В поселке есть сетевые магазины, школа, детский сад, кафе, стройрынок, стадион и многое другое, что необходимо современному человеку для проживания.
Удобный выезд на шоссе, в 12 км. ж/д станция Сходня, в 10 км. аэропорт Шереметьево.
В настоящее время на объекте заканчиваются строительные работы, благодаря чему дом будет полностью готов.
Просмотр в удобное для вас время!